四、寒冬才刚刚开始
5月24日穆迪将中国的发行人评级从Aa3下调至A1,主要原因在于“预计未来几年中国的财政实力会受到一定程度的损害,经济体系整体债务将随着潜在增长的放缓而继续上升。虽然目前的改革进展可能会逐步促使经济和金融体系转型成功,但却不大可能阻止整体债务进一步大幅上升,以及由此导致的
【查看更多内容请登录哈】
[查看全文]
三、当前金融去杠杆已错失最佳时间和路径年初以来,无论是证监会、银监会、保监会,还是人民银行,均以各种形式传递出金融去杠杆的强监管。今年被取消或推迟发行的债券越来越多,10年期国债到期收益率不断走高,从政策意图来说,似乎是在通过货币收紧抬升利率水平,迫使金融机构降杠杆,进而降低金融系统风险,尽量
【查看更多内容请登录哈】
[查看全文]
二、产能过剩:一个未完待续的故事产能过剩是一个老旧而严峻的话题,特别是在2009年以后,刺激计划所导致的行业产能扩张与市场真实需求脱节,加剧了可轻易获得贷款的众多行业的产能过剩情况的恶化。解决产能过剩问题主要分为提升需求和限制供给两个方面,提升需求主要依靠国内基建项目和“一带一路”等国际合作基建项目;
【查看更多内容请登录哈】
[查看全文]
从历史来看,中国房地产市场的兴衰与政策导向高度正相关,此次的调控也不例外,根据4月的数据,30大中城市中一线、二线、三线城市的商品房成交面积同比下降36.36%、45.97%和44.49%,销售端明显回落;CREIS中指数据显示,2017年5月监测的主要城市成交面积环比下降1.11%,近半数城市环比下
【查看更多内容请登录哈】
[查看全文]
经历了2016年房地产价格大幅上涨、金融大体系内信用派生剧烈扩张后,高层终于开始趋严监管并积极寻求拉动中国经济的新方式,一方面强化房地产和金融监管政策,另一方面推动国企改革、维持固定资产投资、继续拓展“一带一路”,期望通过企业改革和加大内外需求来稳定经济、解决过剩,为未来经济的新增长点探路。
面对美
【查看更多内容请登录哈】
[查看全文]





































搬运自:【链接登录后可见】
459667
公园是拥挤的城市所不可或缺的重要组成,一个优秀的设计可以激活城市氛围,抚慰人心。本文就介绍10个不错的小公园。
459664
459665
459666
▲“梯田小公园”。这个小公园位于成都。从成都悠闲的户外生活中得到启发,用现
【查看更多内容请登录哈】
[查看全文]

听说好好分享可以更快的升级用户组~45@,因为等级不够不能分享到资源区~63@,所以就放这里啦~力求荼毒更多人,让更多人一起入坑啦哈哈
简介:(我百度的~58@)阿尔瓦罗·西扎,【链接登录后可见】著名建筑师,被认为是当代最重要的建筑师之一。他的作品注重在现代设计与历史环境之间建立深刻的联系,
【查看更多内容请登录哈】
[查看全文]




























原帖地址:【链接登录后可见】
447338
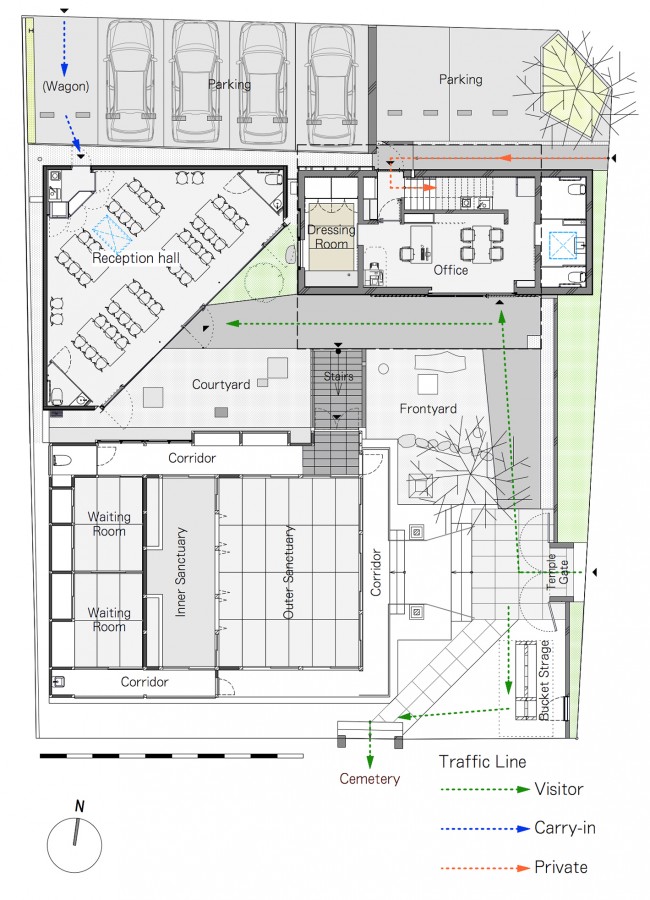
基地位于街区的东北角,基地的北侧面对着学校操场和孩子们的公园。由于不恰当的扩建和绿化,这一区域的通风极其不好,且对于一座宗教场所来说,此地过于脏乱了些。庙宇的主殿在二战空袭中被摧毁,战后新的主殿在旧址上伫立起来,成为和平时代的象征,但由于当时物资匮乏,重
【查看更多内容请登录哈】
[查看全文]
[学士]20米预应力混凝土简支t形梁桥毕业设计_secret
479271
[学士]预应力砼简支梁毕业设计_secret
479272
【2层】428㎡二层框架办事处土建工程量计算及施工图预算
479273
【5层】2819.56㎡五层砖混结构住宅楼工程投标报价书(商务标、技术标)
47
【查看更多内容请登录哈】
[查看全文]
本帖最后由 小齐全全 于 2017-11-9 15:07 编辑
公路沥青路面施工技术规范
479269
路基施工技术规范
479270
公路桥涵施工技术规范
【链接登录后可见】
公路桥涵设计通用规范
【链接登录后可见】
[查看全文]
cad2014中文版 64位和32位都有 带注册机 楼主很懒就不多介绍了 #dm
。。。。为什么没办法直接粘贴截图 上传什么的好麻烦
【图片】
【图片】
【图片】
【图片】
【图片】
【图片】
【图片】
恩就先这么多吧@@14!!
楼主亲测很好
【查看更多内容请登录哈】
[查看全文]


本帖最后由 豆腐no日常 于 2016-7-5 20:53 编辑
感觉我已经很久没有发资源了。。这不符合我的本性。。
其实只是想开个贴整理我看了些什么书(应该叫翻过,都没怎么看完)
我觉得我这贴会被淘宝店主打死
我觉得很多书都是很好的,但是好书不一定你会看得懂,比如大一上学期。。老师让我们
【查看更多内容请登录哈】
[查看全文]



外国景观设计各种风格彩平图总平图平面图PSD素材
来看下预览,
超级高大上有木有!!!
https://www.gn00.com/forum.php?mod=image&aid=458414&size=300x300&key=ec21d967de517ebc&nocache=ye
【查看更多内容请登录哈】
[查看全文]
本帖最后由 曲十一 于 2016-2-2 11:24 编辑
[flash]http://www.tudou.com/v/kiYf-gFvY2k/&resourceId=0_04_05_99/v.swf[/flash]
“世界十大歌剧院”(《今日美国》评)、“世界最壮观剧院”(英国《每日电讯》评)广州大剧院,以璀
【查看更多内容请登录哈】
[查看全文]




















本帖最后由 正直的大腿 于 2015-11-10 16:27 编辑
某大学城的过程模型,给设计师辅助设计用的,建筑做的不是很精细,材质也没贴,都是素模_(:з」∠)_
433061433063433057433062433060433059433058433056433055
【查看更多内容请登录哈】
[查看全文]
【背景资料】
苏州博物馆的新馆设计由当时已85岁高龄的世界著名建筑大师贝聿铭先生担任。贝聿铭先生以擅长设计博物馆而享誉全世界,他曾应肯尼迪总统
【查看更多内容请登录哈】
[查看全文]








































大二下学期做的,用来交期末作业+去参赛_(:з」∠)_
前段时间听老师说拿了银奖,实在侥幸,现在论坛里分享一下,想听些不同的意见_(:з」∠)_
灵感来源【100 Walls Church 百墙教堂】
不知道的可戳链接:【链接登录后可见】
因为临近期末,加之又是团队作业,种
【查看更多内容请登录哈】
[查看全文]
本帖最后由 吉熙萌儿 于 2015-4-5 17:14 编辑
最近突然发现了这个高端大气的软件SketchUp……
不过目前有好多问题,因为三天也只学了一点点基础。。。连渲染都找不到所以只能截图了= =
目前就只会线条推拉跟随路径拉伸偏移那两块里面的12个按钮= =
外加材质和隐藏两个功能
【查看更多内容请登录哈】
[查看全文]
本帖最后由 coffee234 于 2014-7-4 11:50 编辑
毕设题目叫做“交通站场改造与商业综合体建筑设计”
【这么长的名字竟然记住了,啪啪啪...是鼓掌的声音啦~o(╯□╰)o】
还在设计院实习的时候下的任务书,实习还没结束呢那边就赶着要一草,无奈随便描了描先让同学帮交上的
【查看更多内容请登录哈】
[查看全文]
RT,网上关于各家设计院的信息七零八落,对找工作和跳槽的人来说都是一头雾水,有没有已经工作或者听师兄师姐或者家人朋友说过个家设计院的基本情况,包括工资、待遇、户口、加班情况、人员培养、出差频度、工作内容、晋升渠道等等一切?建筑类设计院、园林设计院、土木设计院、道桥、结构都行啊!
工程预算刚入行新人,好国企好项目能有5000+,好私企好项目,4000-6000左右;有2-3年工作经验,单位项目不错,国企能有6000-8000,大部分6000左右,8000的话国有单位得4年左右吧,私企有真本事,工资涨幅可以达到8000,与时间关系不太大,与能力与为人处事有关;铁路维修工属于民工,
【查看更多内容请登录哈】
[查看全文]
在校大学生,觉得还好,毕竟学得这专业了解也多一些,可以从事一些和室内相关的工作,转行园林或者动漫,网媒都可以,毕竟有基础,还可以往室内更高级的路线前进
[查看全文]
本帖最后由 土木人 于 2017-5-2 16:57 编辑
视频:01 同济大学公开课:建筑概论【大一学生必上】 02 《国立交通大学开放式课程:建筑概论》全16集 03 华南理工大学公开课:建筑美学 04 中华百年建筑经典_视频在线观看 - 56.com 书籍:学校大一主要训练空间构成:01
【查看更多内容请登录哈】
[查看全文]



【背景资料】