
















本帖最后由 毛线球儿 于 2016-6-21 21:13 编辑
搬运自:http://www.gooood.hk/the-claude-bernard-overpass-by-dvvd-architects.htm
459645
于2015年10月启用,由DVVD architecture设
【查看更多内容请登录哈】
[查看全文]






























分享来自:【链接登录后可见】
450856
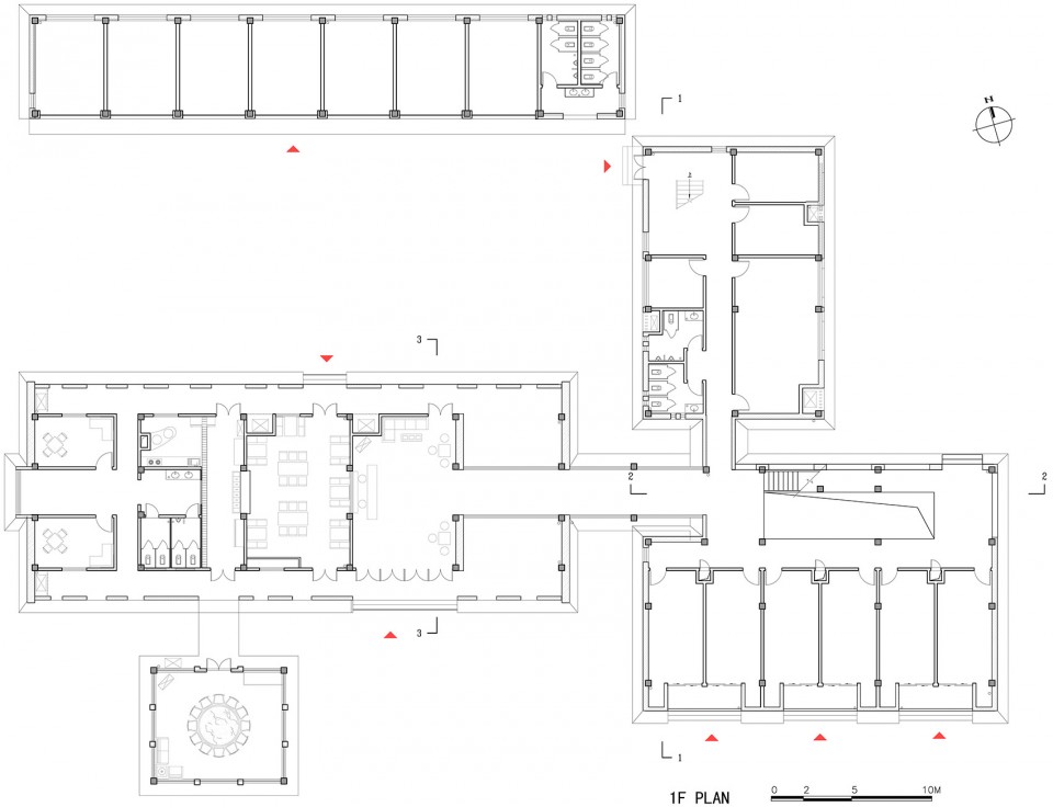
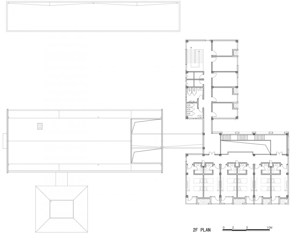
项目名称:花海山房
项目地点: 黄陂,中国武汉
项目规模:1390平米
建成时间:2015.12
设计单位: 瑞拓设计
设计团队: 李涛 李龙 胡炳盛
设计团队主页:戳这里→→ 【链接登录后可见】
UAO设计的花海山房,使用
【查看更多内容请登录哈】
[查看全文]













447350
Kohn Pederson Fox 事务所和 Leslie E. Robertson 联合公司共同策划了东京湾的一座新城市。“未来东京”想象的是一座可以在2045年适应气候变化的城市。在那个时候,海平面上升、地壳运动频繁,
以及台风的威胁使大家开始关注海湾地区低海拔的区域。设计提供了
【查看更多内容请登录哈】
[查看全文]
本帖最后由 毛线球儿 于 2015-8-10 22:29 编辑
原帖地址:【链接登录后可见】
古鲁奇公司近期在天津开发区完成了一个有趣的北京烤鸭店”泰钰丰”。
一家开在异地的北京烤鸭店,设计初期我们思考什麽能够带给当地人们老北京的印象,酒店餐饮空间中我们最常使用
【查看更多内容请登录哈】
[查看全文]
http://m3.img.srcdd.com/farm4/d/2015/0714/16/D456455CE2964F433FDFC78C47B63075_B800_2400_500_332.jpeg一栋建于1884年的鱼子酱仓库的顶楼与屋顶经过重新设计,变成了一个温暖而开放的住宅,与户外环境融为一体
【查看更多内容请登录哈】
[查看全文]
本帖最后由 所谓长安 于 2015-6-26 11:16 编辑
http://m1.img.srcdd.com/farm5/d/2015/0625/11/2A5D97CC5BAD916A08BBBCCABBFCA408_B800_2400_500_322.jpeg
亚历山大图书馆是根据古代
【查看更多内容请登录哈】
[查看全文]
http://m1.img.srcdd.com/farm5/d/2015/0625/11/E4F6F839712095AB0237108520C7D017_B800_2400_614_408.jpeg
【建筑设计】这是一座位于日本岐阜县的咖啡厅,路过这里不留神的话还以为这块的空间发生了扭曲,莫非出现
【查看更多内容请登录哈】
[查看全文]